Kennebunk Beach Realty logo

Search

16 Crowley RoadLincolnville, ME 04849Price: $295,000

  • Price: $295,000
  • Est. Mortgage of $/month
  • 40 Days on Market
$
$
%
$/month over payments
Federal 30-year interest rate: 6.11% last updated on Mar 12, 2026
* All Figures are estimates. Check with your bank or proposed mortgage company for actual interest rates.
This product uses the FRED® API but is not endorsed or certified by the Federal Reserve Bank of St. Louis.
  • $295,000List Price
  • 3Bedrooms
  • 2Bathrooms
  • 1.17Acreage
  • 2,000Square Feet
Listed by Keller Williams Realty
Pending
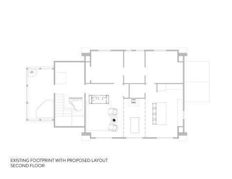
Nestled between Ducktrap River Preserve and the Camden Hills, this Lincolnville home sits on a 1.17 acre lot, in a community of 12 homes. All of the heavy lifting has been done for you. Site is cleared with egress for the driveway. Home sits removed from the road for peace and quiet. Power is on site. The well is dug and the Septic is installed. Internal walls are stood up consistent with the floorplan seen here. Architectural drawings are available, and some construction materials will be conveyed with the sale. Ready for your vision. Priced to allow for an affordable, well-appointed home in a prime region. Reach out to schedule your showing today!

Property Details of 16 Crowley Road

Property Details

Interior Features

Exterior Features

Utilities and Appliances

Map Location

Listing data is derived in whole or in part from the Maine IDX & is for consumers' personal, non commercial use only. Dimensions are approximate and not guaranteed. All data should be independently verified. ©2026 Maine Real Estate Information System, Inc. All Rights Reserved. equal opportunity housing logo   Privacy Policy

Kennebunk Beach Realty participates in ©2026 Maine Listings Internet Data Exchange program, allowing us to display other Maine IDX Participants' listings. This website does not display complete listings. Certain listings of other real estate brokerage firms have been excluded. Mortgage figures are estimates. Check with your bank or proposed mortgage company for actual interest rates. This product uses the FRED® API but is not endorsed or certified by the Federal Reserve Bank of St. Louis.

Hi there! How can we help you?

Contact us using the form below or give us a call.

Send Us A Message:

I agree to receive marketing and customer service calls and text messages from Kennebunk Beach Realty. To opt out, you can reply 'stop' at any time or click the unsubscribe link in the emails. Consent is not a condition of purchase. Msg/data rates may apply. Msg frequency varies. Privacy Policy.

Do not fill in this field:

This site is protected by reCAPTCHA and the Google Privacy Policy and Terms of Service apply.

Hi there! How can we help you?

Contact us using the form below or give us a call.

Send Us A Message:

Do not fill in this field:

This site is protected by reCAPTCHA and the Google Privacy Policy and Terms of Service apply.

Hi there! How can we help you?

Contact us using the form below or give us a call.

Send Us A Message:

Do not fill in this field:

This site is protected by reCAPTCHA and the Google Privacy Policy and Terms of Service apply.

Do not fill in this field:

This site is protected by reCAPTCHA and the Google Privacy Policy and Terms of Service apply.

Do not fill in this field:

This site is protected by reCAPTCHA and the Google Privacy Policy and Terms of Service apply.

Do not fill in this field:

This site is protected by reCAPTCHA and the Google Privacy Policy and Terms of Service apply.

$

Do not fill in this field:

This site is protected by reCAPTCHA and the Google Privacy Policy and Terms of Service apply.

Similar Properties

Contact Us

Do not fill in this field:

I agree to receive marketing and customer service calls and text messages from Kennebunk Beach Realty. To opt out, you can reply 'stop' at any time or click the unsubscribe link in the emails. Consent is not a condition of purchase. Msg/data rates may apply. Msg frequency varies. Privacy Policy.

This site is protected by reCAPTCHA and the Google Privacy Policy and Terms of Service apply.